Delta Q Engineering

Portfolio

explore our featured projects

indio gas station

Indio, California

Comprehensive MEP system Design for Gas Station in Indio, CA

 

DeltaQ delivered complete MEP system design and T24 report for the gas station project in Indio,CA. We also served as Engineer of Record (EOR) for the MEP system design

Hillside Loft Apartments

La Mesa, California

Comprehensive MEP system design for apartment units in La Mesa, CA

 

DeltaQ delivered complete MEP system design and T24 report for the apartment project in La Mesa, CA. We also served as Engineer of Record (EOR) for the MEP system design

Panormic Vista House

Las Vegas, NV

Comprehensive MEP system design for the house in Las Vegas, NV

 

DeltaQ delivered complete MEP system design and ResCheck report We also served as Engineer of Record (EOR) for the MEP system design

 

Observatory Apartment

Ukiah, CA

Comprehensive MEP system design for apartment units in Ukiah, CA

DeltaQ delivered complete MEP system design and T24 report. We also served as Engineer of Record (EOR) for the MEP system design.

 

Elliot Residence, CA

WEST SACRAMENTO, CA

Comprehensive MEP System Design for residential house in West Sacramento, CA

 

DeltaQ delivered complete MEP system design and T24 report. We also served as
Engineer of Record (EOR) for the MEP system design

Best Western

Encinitas, CA

Comprehensive MEP system design for hotel rennovation in Encinitas, CA

DeltaQ delivered complete MEP system design and T24 report. We also served as
Engineer of Record (EOR) for the MEP system design

Retail Shell Building

Baltimore, MD

Comprehensive MEP system design for the vehicle repair shop and retail shell building.

 

DeltaQ delivered complete MEP system design and energy compliance report. We also served as Engineer of Record (EOR) for the MEP system design

Orlando Apartment

Orlando, Florida

Comprehensive MEP system design for hotel to multi-family conversion in Orlando, FL

 

DeltaQ delivered complete MEP system design and Energy Compliance report. We also served as Engineer of Record (EOR) for the MEP system design

Medical Spa

Tempa, FL

Comprehensive MEP system design for outpatient clinic in Tempa, FL

 

DeltaQ delivered complete MEP system design and ComCheck report 

We also served as
Engineer of Record (EOR) for the MEP system design

Carolina Murugan Temple

Moncure, NC

The Temple project is located in Moncure, NC, and includes prayer hall, kitchen, office space, covered seating area, public restroom. DeltaQ…

City Height Apartment

San Leandro,CA

Comprehensive MEP system design for apartment units in San Diego, CA

 

DeltaQ delivered complete MEP system design and T24 report. We also served as Engineer of Record (EOR) for the MEP system design

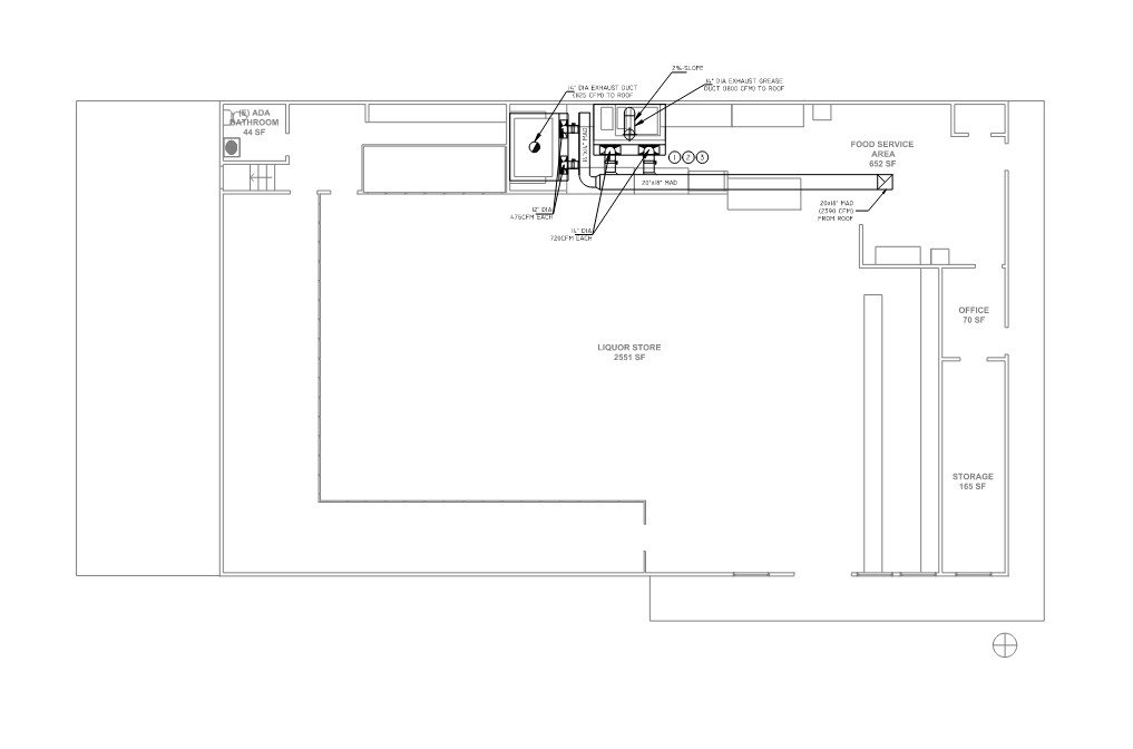
Greenfield Pizza and Deli Food

El Cajon

This is an addition of pizza and deli food service area inside the liquor store. This project consists of type I kitchen hoods and make up…

Get in touch with us for your service related query

Scroll to Top